Home
Our Communities
Coming Soon
Available Now
Konik Estates
Peachtree Landing
Custom Homes
648 Vine Street, St. Catharines
650 Vine Street, St. Catharines
Established Communities
FAQ
Standard Specs
Contact Us
Our Team
Real Estate
Tarion
Home Construction Regulatory Authority
Blog
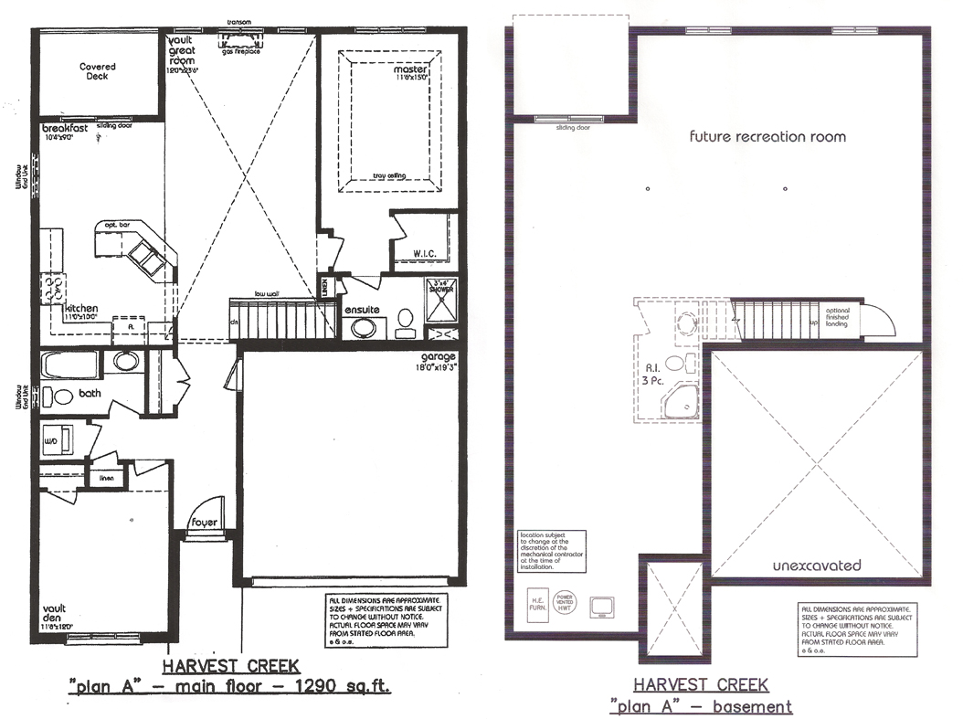
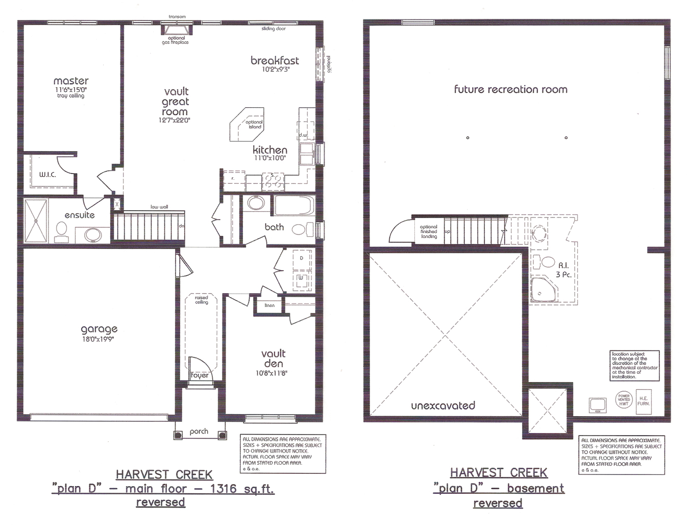
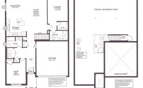
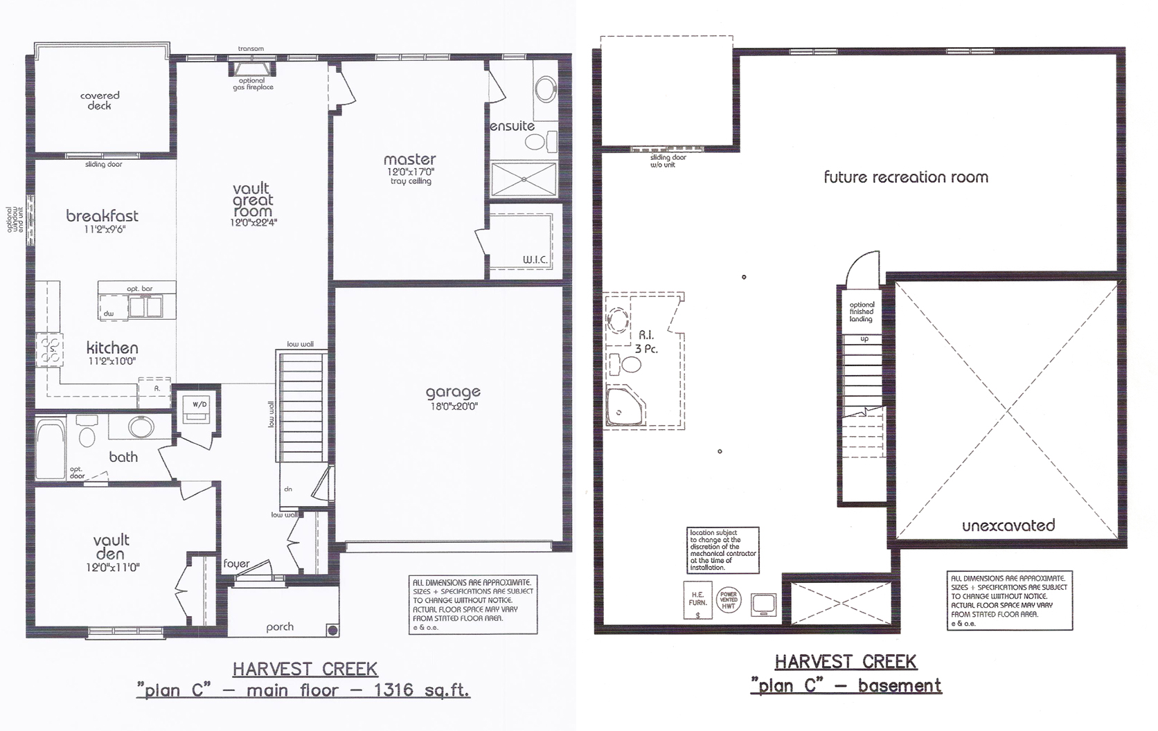
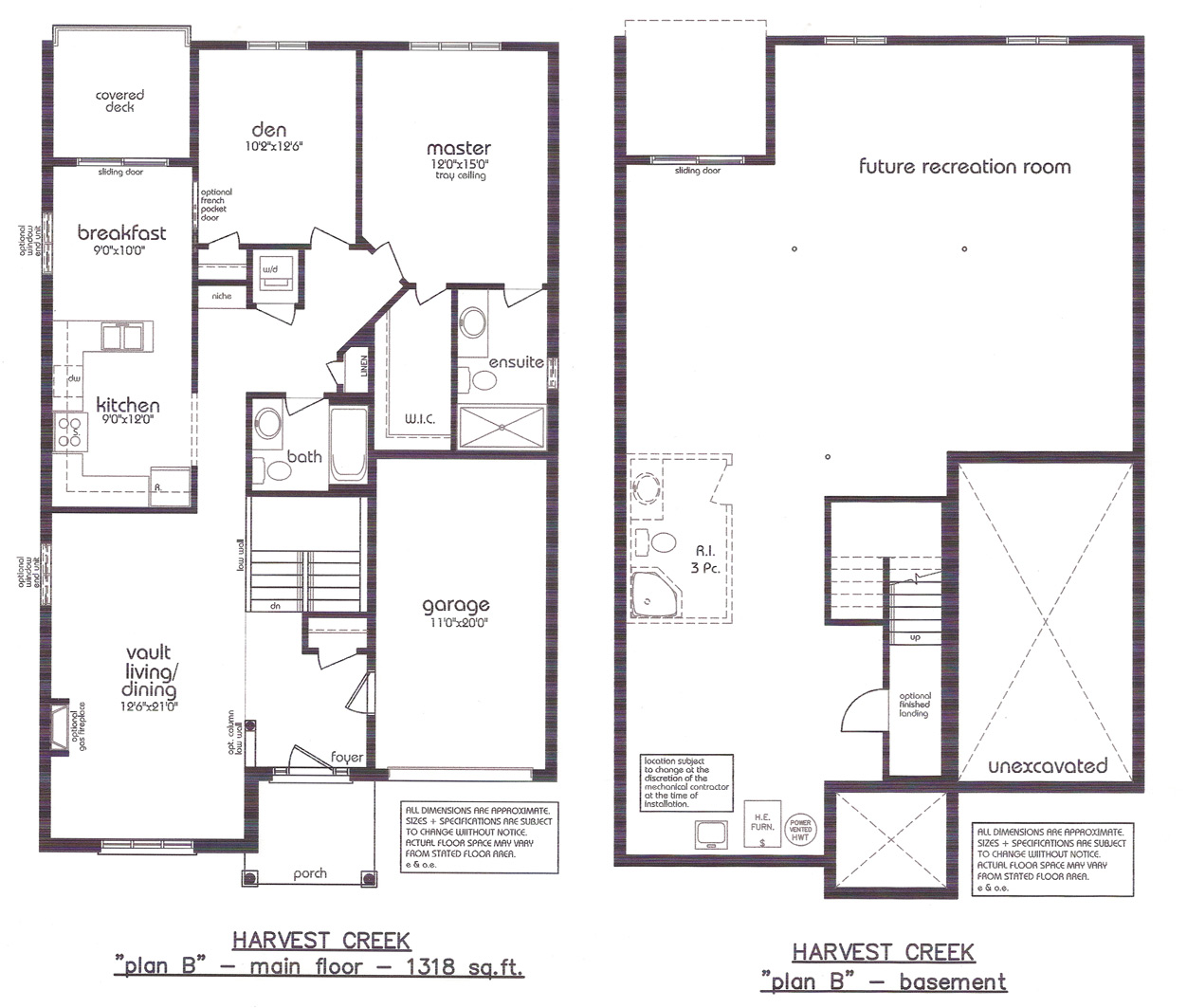
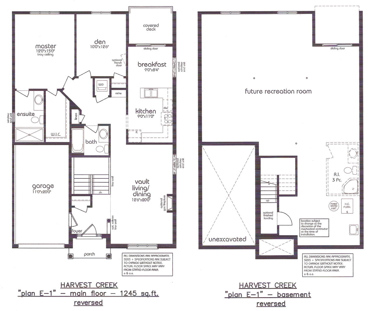
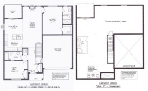
Harvest Creek – Plans
Harvest Creek Plan A
Read More »
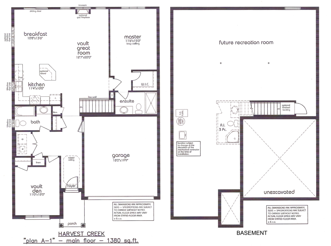
Harvest Creek Plan A-1
Read More »
Harvest Creek Plan B
Read More »
Harvest Creek Plan C
This is the plan used at 24 Hillside Drive.
Read More »
Harvest Creek Plan D
Read More »
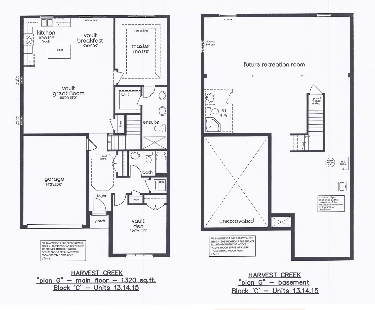
PLAN G Harvest Creek
Plan G can be viewed at 26, 28 and 30 Hillside Drive
Read More »
Harvest Creek Plan E
Read More »