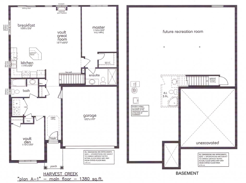
Harvest Creek Plan A-1