Home
Our Communities
Coming Soon
Available Now
Konik Estates
Peachtree Landing
Custom Homes
648 Vine Street, St. Catharines
650 Vine Street, St. Catharines
Established Communities
FAQ
Standard Specs
Contact Us
Our Team
Real Estate
Tarion
Home Construction Regulatory Authority
Blog
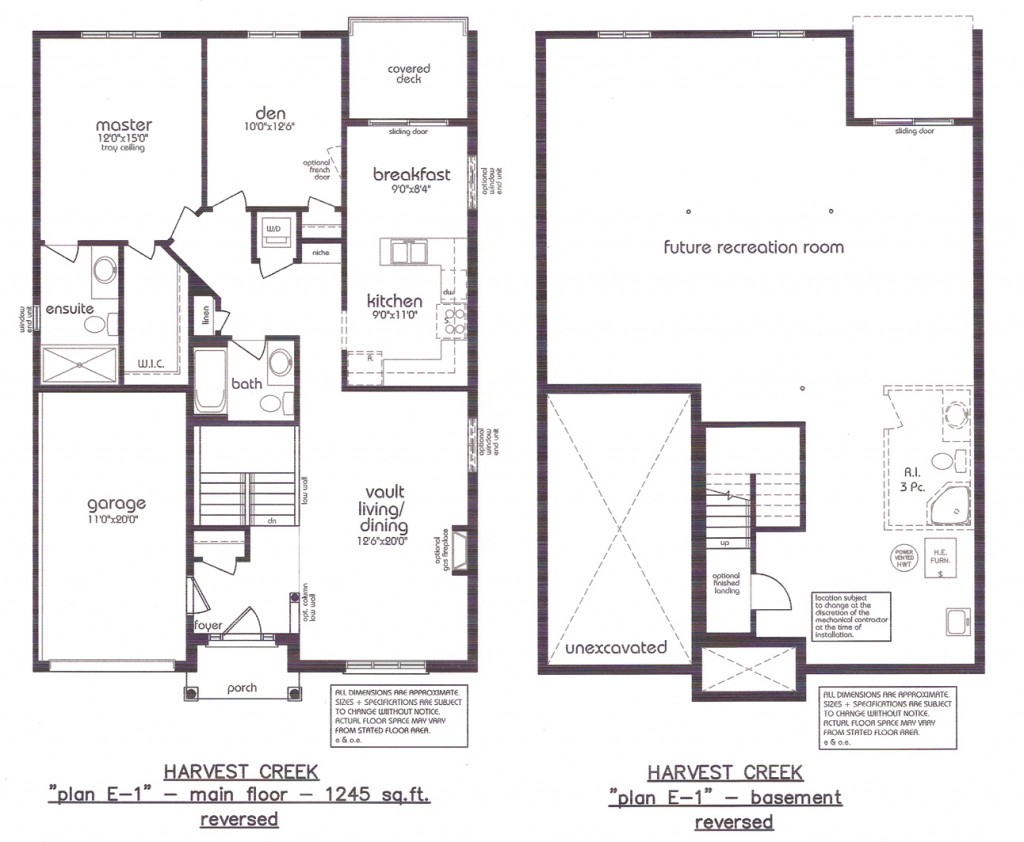
Harvest Creek Plan E